|
№ п/п |
Наименование оборудования |
Тип, модель |
Кол-во |
Габаритные размеры, (мм* мм) |
Площадь, (м2) |
|
|
|
||||
|
|
|
||||
|
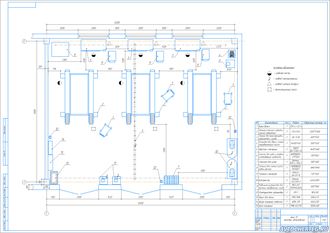
1 |
Кран-балка |
TOR г/п 5,0 т |
1 |
- |
- |
|
2 |
Четырехстоечный гидравлический подъемник |
Std 6764 |
3 |
3320*2368 |
23,58 |
|
3 |
Тележка для транспортировки агрегатов и узлов |
GE-TL05 |
3 |
820*520 |
1,26 |
|
4 |
Установка для сбора и замены отработанного масла |
RWO21-65 |
1 |
500*450 |
0,66 |
|
5 |
Верстак слесарный |
GigantВДТ G-ВДТ-1,6 |
3 |
1600*685 |
3,27 |
|
6 |
Емкость для слива и заправки охлаждающий жидкости |
NORDBERG CMT50A |
1 |
510*560 |
0,28 |
|
7 |
Стеллаж для колёс |
Optimus PRO h-1500,2 |
1 |
900*500 |
0,45 |
|
8 |
Пневмогайковерт с набором ударных головок |
ST-5561K |
1 |
- |
- |
|
9 |
Тележка для снятия постановки рессор |
NORDBERG №31007 |
1 |
1090*890 |
0,97 |
|
10 |
Тележка слесарная |
Inforce 06-01-15 |
3 |
745*465 |
1,02 |
|
11 |
Компрессор |
Бежецк АСО КМ-2
|
2 |
620x1250 |
1,4 |
|
12 |
Набор инструментов 148 предметов |
Арсенал AA-C1412P148 |
3 |
- |
- |
|
13 |
Мобильное устройство для вытяжки отработанных газов |
MFS-0.9 TROMMELBERG
|
2 |
500*500 |
0,5 |
|
14 |
Огнетушитель порошковый |
ОП-1 |
3 |
150х130 |
0,03 |
|
15 |
Ящик для песка |
ПРЕСТИЖ |
1 |
810x470 |
0,38 |
|
16 |
Шкаф пожарный навесной |
ШПК-315 |
1 |
840х230 |
0,19 |
|
17 |
Щит пожарный |
PRB-02278 |
1 |
1000х300 |
0,3 |
|
Итого: |
- |
32 |
- |
34,29 |
|
|
Описание к чертежу
|
Описание отсутствует |
|
Экспликация оборудования
|
есть |
|
Площадь производственного участка
|
108 кв.м. |
|
Формат основного чертежа
|
А1 |