Отделение предназначено для демонтажа и монтажа шин с колес, правку дисков запорных колец, контроль и восстановление шин камер, вулканизация камер, балансировку колес. Технологический процесс на шиномонтаже осуществляется в следующем порядке.
Колеса, снятые с автомобиля на постах ТО или ТР, транспортируют на шиномонтажный участок с помощью специальных тележек. Демонтаж шин выполняют на специальном демонтажно-монтажном стенде в последовательности, предусмотренной технологической картой. После демонтажа покрышку и диск колеса хранят на стеллаже, а камеру на вешалке.
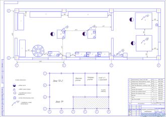
Наименование оборудования
Шиномонтажный станок John Bean
Универсальный балансировочный станок
Вулканизатор электрический
Стенд для демонтажа и монтажа шин
Стеллаж
Стеллаж для покрышек
Стеллаж для хранения дисков
Вешалка для хранения камер
Верстак
Тиски
Умывальник
|
Экспликация оборудования
|
есть |
|
Площадь производственного участка
|
108 кв.м. |
|
Формат основного чертежа
|
А1 |