Подборка технологического оборудования
|
№ |
Наименование оборудования, подразделений |
Модель |
Кол-во |
Площадь |
Стоимость, тыс руб |
|
1 |
Стенд для ремонта генераторов и стартеров |
|
1 |
0,3 |
20 |
|
2 |
Стенд для проверки генераторов и стартера |
|
1 |
0,5 |
80 |
|
3 |
Стенд для диагностики и регулировки приборов электро оборудования |
|
1 |
0,8 |
60 |
|
4 |
Установка для мойки деталей |
|
1 |
4,33 |
30 |
|
5 |
Пресс переносной гидравлический |
|
1 |
0,3 |
20 |
|
6 |
Ванна для мойки мелких деталей |
|
1 |
1,2 |
16 |
|
7 |
Стеллаж для утиля |
|
1 |
1,5 |
110 |
|
8 |
Стол для паяльных работ |
|
1 |
0,9 |
150 |
|
9 |
Заточной станок |
|
1 |
0,5 |
30 |
|
|
Итого |
|
|
9,33 |
516 |
Ведомость на подборку технологической оснастки
|
№ |
Наименования оборудования |
Кол-во |
Габаритные размеры, мм |
Площадь |
Энергоемкость КВт |
Стоимость тыс. руб |
Марка или модель |
|
1 |
Набор торцевых головок |
2 |
- |
- |
- |
6 |
|
|
2 |
Пневмогайковёрт |
2 |
- |
- |
- |
20 |
|
|
3 |
Набор ключей |
2 |
- |
- |
- |
5 |
|
|
4 |
Набор комбинированных гаечных ключей |
2 |
- |
- |
- |
5 |
|
|
5 |
Комбинированных набор отверток |
2 |
- |
- |
- |
3,6 |
|
|
|
Итого |
|
|
|
|
40 |
|
Ведомость на подборку организационной оснастки
|
№ |
Наименования оборудования |
Кол-во |
Габаритные размеры |
Площадь |
Энергоемкость КВт |
Стоимость, тыс. руб |
Марка или модель |
|
1 |
Ванна для мойки деталей |
1 |
1100 500 |
2,44 |
|
|
|
|
2 |
Ларек для отходов |
1 |
320 220 |
0,5 |
|
|
|
|
3 |
Четырех полочный стеллаж |
2 |
1200 470 |
3,5 |
|
|
|
|
4 |
Инструментальный шкаф |
2 |
1500 1000 |
3 |
|
|
|
|
5 |
Верстак с тисками |
1 |
1500 700 |
2 |
|
|
|
|
6 |
Верстак с тумбой |
1 |
1200 860 |
1,03 |
|
|
|
|
|
Итого |
|
|
12,03 |
|
|
|
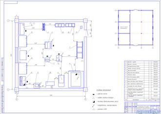
Расчет производственной площади участка АТП
Площадь участка АТП рассчитывается по формуле:
=(9,33+12,03) 4 = 85,44
|
Экспликация оборудования
|
есть |
|
Площадь производственного участка
|
81 кв.м. |
|
Формат основного чертежа
|
А1 |