Участок диагностики электрооборудования

Артикул: 1524
Участок диагностики электрооборудования
450 руб.
Артикул: 1524

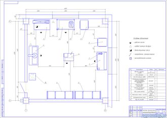
На участке проводят ремонт и контроль генераторов, стартеров, приборов зажигания, контрольно- измерительных приборов и другой аппаратуры. Разборка-сборка агрегатов электрооборудования производится в основном на верстаках с применением универсального инструмента и специальных приспособлений. Ремонт двигателей и узлов включает замену обмоток и изоляции, припайку проводов, слесарные работы.

Надежность работы электрооборудования автомобилей обеспечивается выполнением определенных работ через установленные промежутки времени. Для электрооборудования имеется определенный перечень работ, проводимых при соответствующем ТО.

На участке проводят ремонт и контроль генераторов, стартеров, приборов зажигания, контрольно- измерительных приборов и другой аппаратуры. Разборка-сборка агрегатов электрооборудования производится в основном на верстаках с применением универсального инструмента и специальных приспособлений. Ремонт двигателей и узлов включает замену обмоток и изоляции, припайку проводов, слесарные работы.

Надежность работы электрооборудования автомобилей обеспечивается выполнением определенных работ через установленные промежутки времени. Для электрооборудования имеется определенный перечень работ, проводимых при соответствующем ТО.

Тематические чертежи