Артикул: 314
630 руб.
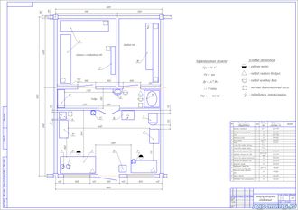
Аккумуляторное отделение выполняет ремонт, зарядку и подзарядку АКБ. Во многих крупных автохозяйствах специалисты этого отделения производят и ТО АКБ при ТО-1 и ТО-2. В соответствии с технологией обслуживания и ремонта АКБ и современными требованиями к производству в цехе в особо крупных автохозяйствах, помещение отделения разделяют на отделения приема, хранения и ремонта (кислотное и зарядное).
:format(png):watermark(s.siteapi.org/9d915ebbe9095fd.ru/watermark/kvto4l2s9ao84wsksw8cskwssw44s4,-1,-1,0,15,none)/9d915ebbe9095fd.ru.s.siteapi.org/img/772651ebfc74068af571074eecd9b40282f4ee66.jpg)