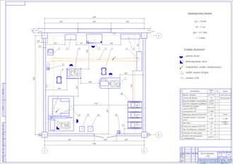
Чертеж участка по ремонту гидромеханических передач автобусов. Формат А1, Компас
|
№ |
Наименование |
Модель |
Кол. |
Размер оборудования в плане |
Площадь |
|
|
Единицы оборудования (м2) |
Общая (м2) |
|||||
|
1. |
Верстак слесарный |
СДТ-3701 |
1 |
1400x800 |
1,12 |
1,12 |
|
2. |
Стеллаж для деталей |
СИ |
2 |
1750х450 |
0,79 |
1,58 |
|
3. |
Шкаф для приборов и приспособлений |
мод.983 |
1 |
1000x500 |
1.0 |
1.0 |
|
4. |
Ящик для инструмента передвижной |
42.0236 |
2 |
600x420 |
0,25 |
0,50 |
|
5. |
Установка для заправки масла в АКПП (ГМП) |
Eitecht 6248 |
1 |
525х500 |
0.26 |
0.26 |
|
6. |
Стенд ремонта ГМП |
Р-39587 |
1 |
1260х870 |
1.4 |
1.40 |
|
7. |
Обкаточный стенд для АКПП (ГМП) |
СИ |
1 |
1850х950 |
1,76 |
1,76 |
|
8. |
Установка моечная с консольным краном |
М-205 |
1 |
3150х2300 |
7,25 |
7,25 |
|
9. |
Кран-балка |
С-300 |
1 |
- |
- |
- |
|
10. |
Стапель для хранения АКПП (ГМП) |
СИ |
1 |
2500х1250 |
3,13 |
3,13 |
|
11. |
Ларь для обтирочных материалов |
СИ |
1 |
450x450 |
0,20 |
0,20 |
|
12. |
Контейнер для сбора мусора |
СИ |
1 |
450x450 |
0,20 |
0,20 |
|
13. |
Поставка под огнетушитель с огнетушителем |
СИ/ОП-5 |
2 |
250х250 |
0,06 |
0,12 |
|
|
ИТОГО |
|
|
|
|
18,52 |
|
Описание к чертежу
|
Описание отсутствует |
|
Экспликация оборудования
|
есть |
|
Площадь производственного участка
|
81 кв.м. |
|
Формат основного чертежа
|
А1 |