|
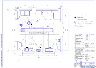
№ |
Наименование |
Модель |
Кол. |
Размеры в плане, мм |
Занимаемая площадь, м2 |
|
1. |
Верстак с тумбой |
ВТ-1.6 |
1 |
1600х685 |
1,10 |
|
2. |
Инструментальная тележка |
МАСТАК 522-05581B |
1 |
480х460 |
0,22 |
|
3. |
Диагностическая стойка с приборами для диагностики автомобилей |
TOPEX 79R500 |
1 |
616х742 |
0,46 |
|
4. |
Стенд для диагностики электрооборудования |
Скиф1-05А |
1 |
800х650 |
настольный |
|
5. |
Верстак слесарный, двухтумбовый под стенд для диагностики электрооборудования |
FERRUM 01.206G-5015 |
1 |
1900х686 |
1,3 |
|
6. |
Пускозарядное устройство |
Telwin ENERGY 1000 START 12-24V 829008 |
1 |
560х380 |
0,21 |
|
7. |
Прибор для проверки света фар |
ОПК |
1 |
665х1770 |
1,18 |
|
8. |
Приспособление для откручивания полюсных винтов стартера |
Нестанд. |
1 |
- |
- |
|
9. |
Стенд для тестирования и очистки форсунок |
Launch CNC-602 |
1 |
500х600 |
- |
|
10. |
Тележка инструментальная под стенд для тестирования и очистки форсунок |
WS-1 |
1 |
840х600 |
0,5 |
|
11. |
Гидравлический пресс с силовым устройством - домкратом |
NORDBERG N3612JL ECO |
1 |
1240х240 |
0,30 |
|
12. |
Радиально-сверлильный станок |
Optimum RB8S |
1 |
820×290 |
0,24 |
|
13. |
Стеллаж |
СФМ (4 уровня) |
1 |
2000х1000 |
2,00 |
|
14. |
Инструментальный шкаф |
ITP-113S-3S-1L |
1 |
1000х500 |
0,50 |
|
15. |
Шкаф для спецодежды |
ШР-22 L800 |
1 |
800х500 |
0,40 |
|
16. |
Ларь |
Нестанд. |
1 |
500х350 |
0,18 |
|
17. |
ИТОГО |
|
|
|
8,59 |
|
Описание к чертежу
|
Описание отсутствует |
|
Экспликация оборудования
|
есть |
|
Площадь производственного участка
|
81 кв.м. |
|
Формат основного чертежа
|
А1 |