Артикул: 100
180 руб.
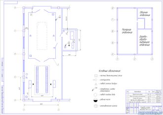
Малярные работы являются завершающими при ремонте кузова автомобиля, потому в малярный участок автомобили поступают после выполнения всех видов работ. При организации работы в малярном участке наибольшее число рабочих мест создается для подготовки автомобиля к окраске. Окраска и сушка автомобилей производится в специальных камерах.
:format(png):watermark(s.siteapi.org/9d915ebbe9095fd.ru/watermark/kvto4l2s9ao84wsksw8cskwssw44s4,-1,-1,0,15,none)/9d915ebbe9095fd.ru.s.siteapi.org/img/5379a448310c414f2eaac662acdcd24c04e50877.jpg)