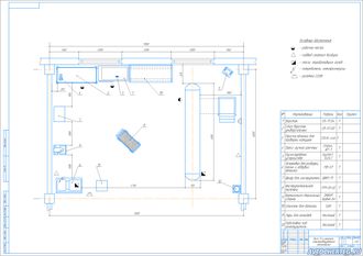
|
№ |
Наименование |
Модель |
Кол. |
Размеры в плане, мм |
Занимаемая площадь, м2 |
|
1. |
Верстак |
СВ-1Т.04 |
1 |
1400х690 |
0,97 |
|
2. |
Стол-верстак универсальный |
СВ-0Т.00 |
1 |
1800х690 |
1,24 |
|
3. |
Приспособление для проверки катушек |
Собственного изготовления |
1 |
170х48 |
- |
|
4. |
Пресс ручной реечный |
Stalex AP-1 |
1 |
268х135 |
- |
|
5. |
Пускозарядное устройство |
Gystart 1224T |
1 |
410х320 |
- |
|
6. |
Установка для разборки, мойки и обдувки деталей |
МВ-01 |
1 |
1200×700 |
0,84 |
|
7. |
Шкаф для инструмента |
ШИМ-11 |
1 |
700х520 |
0,36 |
|
8. |
Инструментальная тележка |
ТРМ-09-02 |
1 |
1155х500 |
0,58 |
|
9. |
Вертикально-сверлильный станок |
ЭНКОР Корвет-244 |
1 |
450×580 |
0,26 |
|
10. |
Стеллаж для деталей |
SGR |
1 |
2000х800 |
1,6 |
|
11. |
Ларь для отходов |
Нестанд. |
1 |
500х500 |
0,25 |
|
12. |
Подставка под огнетушитель |
Нестанд. |
1 |
350х350 |
0,12 |
|
13. |
ИТОГО |
|
|
|
6,22 |
|
Описание к чертежу
|
Описание отсутствует |
|
Экспликация оборудования
|
есть |
|
Площадь производственного участка
|
54 кв.м. |
|
Формат основного чертежа
|
А1 |