|
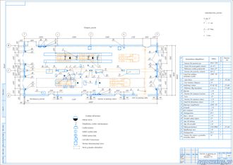
№ |
Наименование оборудования |
Модель |
Кол. |
Габарит-ные размеры, мм |
Площадь |
Стоимость |
||
|
ед. |
Общ. |
ед. |
Общ. |
|||||
|
1 |
Стапель для ремонта рам |
OMAS T210 |
1 |
5000х2000 |
10 |
10 |
327000 |
327000 |
|
2 |
Телега для аксессуаров стапеля |
Jet AP-1 |
1 |
1000х400 |
0,4 |
0,4 |
1000 |
1000 |
|
3 |
Мобильное силовое устройство |
Stalex Q11 |
7 |
1400х500 |
0,7 |
4,9 |
32000 |
224000 |
|
4 |
Стеллаж для оснастки стапеля |
HLR-12 |
1 |
3000х700 |
2,1 |
2,1 |
800 |
800 |
|
5 |
Стенд для проверки геометрии кузова |
СОМЕС TR1 |
1 |
1200х300 |
0,36 |
0,36 |
80000 |
80000 |
|
6 |
Кран балка |
НХРС |
2 |
|
|
|
15000 |
30000 |
|
7 |
Стол тележка сварщика |
с/и |
2 |
1200х400 |
0,48 |
0,96 |
500 |
1000 |
|
8 |
Наждачный станок |
BT-BG 150 |
1 |
800х400 |
0,32 |
0,32 |
7800 |
7800 |
|
9 |
Подъемник двухплунжерный |
MD 155 K23/3 |
4 |
2500х600 |
1,5 |
6 |
11300 |
45200 |
|
10 |
Верстак |
с/и |
1 |
3000х1300 |
3,9 |
3,9 |
700 |
700 |
|
11 |
Стеллаж для хранения оснастки |
с/и |
1 |
2500х600 |
1,5 |
1,5 |
1000 |
1000 |
|
12 |
Тиски |
JET |
1 |
|
|
|
500 |
500 |
|
13 |
Стеллаж для хранения стекол |
с/и |
1 |
4500х2000 |
9 |
9 |
800 |
800 |
|
14 |
Стенд для демонтажа стекол |
с/и |
1 |
1500х883 |
1,32 |
1,32 |
28500 |
28500 |
|
15 |
Сварочный полуавтомат |
BIMAX 132 |
3 |
400х300 |
0,12 |
0,36 |
14100 |
42300 |
|
16 |
Эстакада |
с/и |
1 |
25000х3500 |
87,5 |
87,5 |
|
|
|
17 |
Щит пожарный |
с/и |
2 |
|
|
|
150 |
300 |
|
18 |
Огнетушитель |
ОП5 |
6 |
300х300 |
0,09 |
0,54 |
1000 |
6000 |
|
19 |
Ящик с песком |
с/и |
6 |
500х500 |
0,25 |
3,25 |
200 |
2600 |
|
20 |
Тепловая завеса ворот |
TZ1 |
8 |
300х300 |
0,09 |
0,72 |
3350 |
23800 |
|
21 |
Ларь для ветоши |
с/и |
6 |
250х250 |
0,062 |
0,375 |
100 |
600 |
|
22 |
Ларь для отходов |
с/и |
6 |
250х250 |
0,062 |
0,375 |
100 |
600 |
|
23 |
Мобильная вытяжка |
ESAB ORIGO |
3 |
1000х500 |
0,5 |
1,5 |
24000 |
72000 |
|
24 |
Передвижные леса |
с/и |
1 |
2500х1500 |
3,75 |
3,75 |
20000 |
20000 |
|
25 |
Огнетушитель |
ОУ-5 |
6 |
300х300 |
0,09 |
0,54 |
1000 |
6000 |
|
26 |
Приспособление для снятия топливных баков |
с/и |
1 |
1044*900 |
0,94 |
0,94 |
14800 |
14800 |
|
|
|
|
|
|
∑=140.29 |
∑=937300 |
||
|
Описание к чертежу
|
Описание отсутствует |
|
Экспликация оборудования
|
есть |
|
Площадь производственного участка
|
864 кв.м. |
|
Формат основного чертежа
|
А1 |