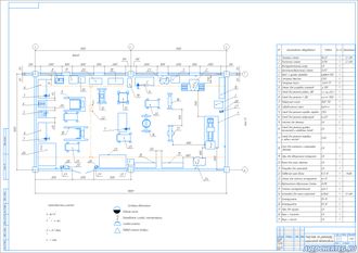
|
№ |
Наименование оборудования |
Модель |
Кол. |
Габарит-ные размеры, мм |
Площадь |
Стоимость |
||
|
ед. |
Общ. |
ед. |
Общ. |
|||||
|
1 |
Токарный станок |
16к20 |
1 |
3000*1200 |
3,6 |
3,6 |
1350000 |
1350000 |
|
2 |
Расточной станок |
2е78п |
1 |
2100*1800 |
3,78 |
3,78 |
1130000 |
1130000 |
|
3 |
Инструментальный шкаф |
С.И. |
1 |
800*600 |
0,48 |
0,48 |
5700 |
5700 |
|
4 |
Настольносверлильный станок |
2м112 |
1 |
900*750 |
0,68 |
0,68 |
23000 |
23000 |
|
5 |
Пресс с ручным приводом |
корвет-590 |
1 |
900*750 |
0,68 |
0,68 |
11900 |
11900 |
|
6 |
Слесарный верстак
|
2250
|
3 |
1800*800 |
1,44 |
4,32 |
3700 |
11700 |
|
7 |
Слесарные тиски |
4045-75 |
3 |
|
|
|
3500 |
10500 |
|
8 |
Станок для шлифовки клапанов |
р-108 |
1 |
1000*900 |
0,9 |
0,9 |
45000 |
45000 |
|
9 |
Стенд для ремонта рядных ДВС |
ww-mg-600/v |
1 |
1550*950 |
1,47 |
1,47 |
56000 |
56000 |
|
10 |
Стенд для ремонта V ДВС |
ww-hv 1500 |
1 |
2150*1050 |
2,26 |
2,26 |
78000 |
78000 |
|
11 |
Поверочная плита |
1000 750 |
1 |
1000*800 |
0,8 |
0,8 |
13900 |
13900 |
|
12 |
Гидравлический пресс |
hydro-м |
1 |
1000*500 |
0,5 |
0,5 |
35000 |
35000 |
|
13 |
Стенд для ремонта коробок передач |
2365 |
1 |
1200*700 |
0,84 |
0,84 |
18900 |
18900 |
|
14 |
Стенд для ремонта редукторов |
р-620 |
1 |
950*550 |
0,52 |
0,52 |
4450 |
4450 |
|
15 |
Стеллаж для деталей |
С.И. |
2 |
2000*800 |
1,6 |
1,6 |
600 |
1200 |
|
16 |
Стенд для ремонта рулевых механизмов и карданных валов |
С.И. |
1 |
550*1200 |
0,6 |
0,6 |
5700 |
5700 |
|
17 |
Стенд для ремонта передних и задних мостов |
2450 |
1 |
600*1250 |
0,75 |
0,75 |
13250 |
13250 |
|
18 |
Стол для контроля и сортировки деталей |
С.И. |
1 |
1500*850 |
1,3 |
1,3 |
2300 |
2300 |
|
19 |
Ларь для обтирочного материала |
С.И. |
1 |
500*400 |
0,2 |
0,2 |
500 |
500 |
|
20 |
Ванна для мойки деталей |
С.И. |
1 |
1200*650 |
0,78 |
0,78 |
1080 |
1080 |
|
21 |
Площадка для агрегатов |
С.И. |
1 |
3000*1500 |
4,5 |
4,5 |
1300 |
1300 |
|
22 |
Подвесная кран-балка |
К-Б-10 |
1 |
|
|
|
35000 |
35000 |
|
23 |
Станок для заточки инструмента |
on-25 |
1 |
850*560 |
0,48 |
0,48 |
6950 |
6950 |
|
24 |
Вертикально-сверлильный станок |
2н118 |
1 |
1550*1100 |
1,7 |
1,7 |
340000 |
340000 |
|
25 |
Тележка инструментальная |
wds-5 |
3 |
900*750 |
0,675 |
2,025 |
5300 |
15900 |
|
26 |
Установка для мойки агрегатов |
м216е2 |
1 |
2000*2200 |
4,4 |
4,4 |
230000 |
230000 |
|
27 |
Огнетушитель |
ОП-10 |
3 |
350*350 |
0,13 |
0,39 |
1100 |
3300 |
|
28 |
Огнетушитель |
ОУ-10 |
3 |
350*350 |
0,13 |
0,39 |
1100 |
3300 |
|
29 |
Ларь для мусора |
С.И. |
1 |
500*500 |
0,25 |
0,25 |
500 |
500 |
|
30 |
Ящик с опилками |
С.И. |
1 |
500*500 |
0,25 |
0,25 |
300 |
300 |
|
31 |
Ящик с песком |
С.И. |
1 |
500*500 |
0,25 |
0,25 |
300 |
300 |
|
|
|
|
|
|
∑=40,7 |
∑=3454930 |
||
|
Описание к чертежу
|
Описание отсутствует |
|
Экспликация оборудования
|
есть |
|
Площадь производственного участка
|
162 кв.м. |
|
Формат основного чертежа
|
А1 |