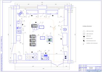
Планировочное решение моторного участка АТП.
|
Наименование |
Модель |
Кол-во |
Габаритные размеры, мм |
Занимаемая площадь, м2 |
Примечание |
|
Стенд для ремонта двигателей |
Р1250 |
2 |
940х940 |
0,8836 |
Передвижной |
|
Слесарный верстак |
1ВС-2А |
2 |
1850х700 |
1,295 |
|
|
Шкаф для инструмента и приспособлений |
СИ |
1 |
1200х640 |
0,768 |
|
|
Обкаточно-тормозной стенд |
Интер 449 |
1 |
2020х1140 |
2,3028 |
Для «холодной» обкатки ДВС |
|
Инструментальная тележка |
Ferrum 02.230 |
2 |
780х455 |
0,3549 |
Передвижная |
|
Стол для дефектовки деталей |
СИ |
1 |
2000х840 |
1,68 |
|
|
Пресс гидравлический |
TOPLIFT PRESS TL 0500-1 |
1 |
800х650 |
0,52 |
|
|
Установка для мойки и очистки деталей двигателя |
ОРГ-386 |
1 |
1280х1065 |
1,3632 |
Q = 20 т |
|
Вертикально-сверлильный станок |
1А82 |
1 |
780х460 |
0,3588 |
|
|
Электротельфер на монорельсе |
CVAT |
1 |
- |
- |
Q = 5 т |
|
Стеллаж для деталей |
СИ |
1 |
2600х530 |
1,378 |
|
|
Стол для приспособлений |
СИ |
1 |
1500х840 |
1,26 |
|
|
Приспособление для сборки деталей цилиндро-поршневой группы |
СИ |
1 |
300х400 |
- |
|
|
Печь электрическая муфельная |
ГАРО 345.77 |
1 |
580х270 |
- |
|
|
Деревянный трап |
СИ |
1 |
850х700 |
0,595 |
|
|
Установка для сбора технических жидкостей |
Сорокинстру-мент мод.11.20 |
1 |
530х290 |
0,1537 |
|
|
Ларь для отходов |
СИ |
1 |
600х600 |
0,36 |
|
|
Ларь для ветоши |
СИ |
1 |
900х600 |
0,54 |
|
|
Пожарный пост |
ПоС |
1 |
1200х450 |
0,54 |
|
|
Трап для двигателей (отремонтированных и ожидающих ремонта) |
СИ |
1 |
1830х785 |
1,43655 |
|
|
Экспликация оборудования
|
есть |
|
Площадь производственного участка
|
81 кв.м. |
|
Формат основного чертежа
|
А1 |