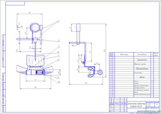
Сборочный чертеж, спецификация и описание устройства.
Люфтомер-динамометр - прибор для определения углового перемещения (люфта) рулевого колеса автотранспортных средств.
Описание:
Динамометр-люфтомер модели К402
Технические требования
Габаритная высота прибора - 197(мм)
Габаритная ширина прибора - 124(мм)
Максимальный замеряемый люфт - 25
Максимальное замеряемое усилие динамометром - 1,25(кгс)
|
Описание к чертежу
|
Описание отсутствует |
|
Спецификация к сборочному чертежу
|
есть |
|
Формат основного чертежа
|
А2 |