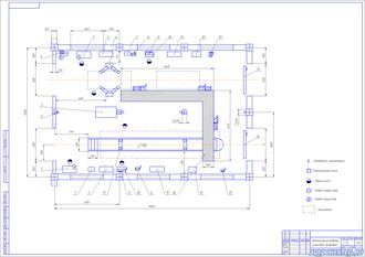
Планировка поста приемки автомобилей. Спецификация оборудования и расчет площади.
На участке приемки производятся диагностические работы автомобилей и дальнейшее распределение их на посты технического обслуживания.
Компьютерная диагностика автомобиля — это тестирование различных электронных систем и исполнительных механизмов автомобиля, влияющих на работу бортовых систем, а также выявление неисправностей, связанных с работой электронных систем автомобиля и составление диагностической карты неисправностей для последующего ремонта и устранения неполадок, связанных с автомобильным электрооборудованием и исполнительными системами. Все электронные бортовые системы автомобиля оснащены системами самодиагностики. Эти системы необходимы для управления исполнительными механизмами автомобиля, непрерывного тестирования в момент запуска и работы двигателя. Системы самодиагностики служат незаменимым помощником в снабжении водителя информацией о работе автомобиля в целом, информируют о возможных неисправностях узлов и агрегатов, а также отслеживают меж сервисные интервалы, которые в свою очередь напоминают о необходимости своевременно пройти техническое обслуживание автомобиля.
|
Описание к чертежу
|
Описание отсутствует |
|
Экспликация оборудования
|
есть |
|
Площадь производственного участка
|
216 кв.м. |
|
Формат основного чертежа
|
А1 |