Подбор технологического оборудования, организационной и технологической оснастки
Ведомость технологического оборудования проектируемого подразделения
|
Технологическое оборудование |
||||||||
|
№ п/п |
Наименование оборудования |
Кол-во |
Габаритные размеры, мм |
Площадь, м2 |
Энергоем-кость, кВт |
Стоимость, руб. |
Марка или модель |
|
|
Цена р/шт |
Общая |
|||||||
|
1 |
Гидравлическая трансмиссионная стойка |
1 |
1100x240x2 50 |
0.3 |
- |
10000 |
10000 |
- |
|
2 |
Двухстоечный электромеханический подъемник |
1 |
1280х3416х 2845 |
4.4 |
7 |
200000 |
200000 |
- |
|
3 |
Установка для сбора масла |
1 |
890х320х380 |
0.3 |
3 |
50000 |
50000 |
- |
|
4 |
Станок сверлильный |
1 |
640х430х260 |
0.3 |
1 |
20000 |
20000 |
- |
|
ИТОГО |
4 |
|
5,3 м2 |
11 |
280000 |
280000 |
- |
|
Подбор организационной оснастки осуществляем исходя из перечня работ, выполняемых в производственном участке, учитывая количество рабочих мест и количество одновременно работающих в наиболее загруженную смену.
Ведомость технологической оснастки проектируемого подразделения
|
№ п/п |
Наименование оборудования |
Марка или модель |
Кол-во |
Стоимость, руб. |
|
|
Цена, р/шт |
Общая |
||||
|
1 |
Моечная щетка ручная |
- |
1 |
2000 |
2000 |
|
2 |
Пистолет для обдува деталей |
- |
1 |
5000 |
5000 |
|
3 |
Адаптеры для теста обработки форсунок |
- |
1 |
3000 |
3000 |
|
4 |
Линейка для проверки схождения колес |
- |
1 |
1000 |
1000 |
|
Итого:
|
|
- |
4 |
11000 |
11000 |
Ведомость организационной оснастки проектируемого подразделения
|
№ п/п |
Наименование |
Модель |
Количество |
Размеры в плане, мм |
Общая площадь, м2 |
Стоимость, руб. |
|
1 |
Шкаф инструменталь-ный |
ИП-2 |
2 |
1860х920х500 |
3,4 |
12000 |
|
2 |
Инструменталь-ная тележка | Inforce 4
|
2 |
745х465х825 |
0,7 |
15000 |
|
3 |
Верстак инструменталь-ный | MECHANIC №151 |
2 |
|
6,06 |
80000
|
|
4 |
Металлический стеллаж | МКФ 18915-2,0 |
3 |
2000x1830x91 |
11 |
47000 |
|
|
Итого: |
|
9 |
|
21.2 |
154000 |
|
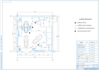
Описание к чертежу
|
Описание отсутствует |
|
Экспликация оборудования
|
есть |
|
Площадь производственного участка
|
144 кв.м. |
|
Формат основного чертежа
|
А1 |