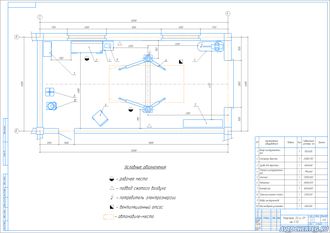
Участок на один рабочий пост, автомобили УАЗ Хантер
|
№ |
Наименование |
Модель |
Кол-во |
Габариты, мм |
Площадь, м2 |
Стоимость, тыс. руб |
|
1 |
Шкаф инструментальный |
- |
1 |
950*505 |
0,4 |
30 |
|
2 |
Слесарный верстак |
- |
1 |
2000*750 |
1,5 |
20 |
|
3 |
Тумба для верстака |
- |
1 |
600*650 |
0,3 |
15 |
|
4 |
Тележка инструментальная |
- |
1 |
795*660 |
0,5 |
27 |
|
5 |
Стеллаж |
- |
1 |
2500*500 |
1,25 |
5 |
|
|
Итого: |
|
|
|
3,95 |
97 |
Ведомость технологического оборудования и оснастки
|
№ |
Наименование |
Модель |
Кол-во |
Габариты, мм |
Площадь, м2 |
Стоимость, тыс. руб |
|
1 |
Подъемник |
- |
1 |
3680х520 |
1,91 |
200 |
|
2 |
Компрессор |
- |
1 |
1650х600 |
1 |
20 |
|
3 |
Трансмиссионная стойка |
- |
1 |
520х520 |
0,27 |
16 |
|
4 |
Набор инструментов |
- |
1 |
- |
|
10 |
|
5 |
Маслосборная установка |
- |
1 |
550х550 |
0,3 |
25 |
|
|
Итого: |
|
|
|
3,48 |
271 |
|
Описание к чертежу
|
Описание отсутствует |
|
Экспликация оборудования
|
есть |
|
Площадь производственного участка
|
72 кв.м. |