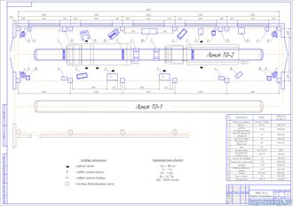
В зоне ТО-2 выполняются работы связанные с поддержанием технически исправного состояния автомобилей, а также работы по сопутствующему ремонту.
|
№ |
Наименование оборудования |
Тип, модель |
Кол-во |
Габаритные размеры, мм |
Занимаемая площадь, м2 |
|
|
ед. |
Общ. |
|||||
|
1. |
Подъемник канавный |
Smartlift 73.58SL |
3 |
- |
- |
- |
|
2. |
Верстак |
ВС-1А |
2 |
1200х700 |
0,84 |
1,68 |
|
3. |
Тумбочка инструментальная |
112.20 |
2 |
1200х500 |
0,6 |
0,12 |
|
4. |
Ларь для обтирочных материалов |
СИ |
2 |
600х400 |
0,24 |
0,48 |
|
5. |
Ларь для отходов |
СИ |
2 |
400х400 |
0,16 |
0,32 |
|
6. |
Установка для сбора масла |
ДП |
1 |
530х400 |
0,21 |
0,21 |
|
7. |
Трап |
СИ |
2 |
- |
- |
- |
|
8. |
Тепловая завеса у ворот |
КС-2Ф-3М |
4 |
d650 |
0,33 |
1,32 |
|
9. |
Установка для раздачи масла |
455.774 |
1 |
750х500 |
0,38 |
0,38 |
|
10. |
Стеллаж для хранения приборов и приспособлений |
СИ |
1 |
1750х650 |
1,14 |
1,14 |
|
11. |
Тележка для снятия и установки колес |
ТГП |
1 |
1020х900 |
0,92 |
0,92 |
|
12. |
Гайковерт |
Г-120 |
1 |
1200х650 |
0,78 |
0,78 |
|
13. |
Воздухораздаточная колонка |
С-413 |
2 |
450х600 |
0,27 |
0,54 |
|
14. |
Тележка |
05.Т.034 |
1 |
850х400 |
0,34 |
0,34 |
|
15. |
Ящик с песком |
СИ |
1 |
700х700 |
0,49 |
0,49 |
|
16. |
Огнетушитель |
ОХП-10 |
2 |
450х450 |
0,20 |
0,40 |
|
ИТОГО |
- |
- |
- |
- |
9,12 |
|
|
Экспликация оборудования
|
есть |
|
Площадь производственного участка
|
180 кв.м. |
|
Формат основного чертежа
|
А1 |