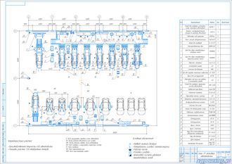
| № | Наименование | Модель | Количество | Ширина | Длинна | Площадь занимаемая в плане одной позицией | Площадь занимаемая в плане | Цена одной позиции | Цена |
| 1 | Стенд для проверки установки колес легкового автомобиля | КДС5К Т | 2 | 600 | 1100 | 0,66 | 1,32 | 597 600 | 1195200 |
| 2 | Тележка инструментальная слесаря по ремонту двигателя | WDS-5 | 1 | 820 | 738 | 0,60516 | 0,60516 | 21 840 | 21840 |
| 3 | Подставка под двигатель | CN15944 | 1 | 780 | 1150 | 0,897 | 0,897 | 32 500 | 32500 |
| 4 | Пост слесаря авторемонтника | РАУН.9404М1 | 1 | 680 | 850 | 0,578 | 0,578 | 275 000 | 275000 |
| 5 | Шкаф для приборов | ML WELLMET | 1 | 804 | 1850 | 1,4874 | 1,4874 | 19 989 | 19989 |
| 6 | Маслораздаточный бак | NORDBER 26KIT | 1 | 750 | 800 | 0,6 | 0,6 | 56 244 | 56244 |
| 7 | Бак для сбора отработавших моторных масел | Т500ВКЗ | 1 | 650 | 1480 | 0,962 | 0,962 | 11 454 | 11454 |
| 8 | Бак для сбора отработавших трансмиссионных масел | Т500ВКЗ | 1 | 650 | 1480 | 0,962 | 0,962 | 11 454 | 11454 |
| 9 | Верстак слесарный | Sivik КС-023 | 2 | 1300 | 700 | 0,91 | 1,82 | 40 800 | 81600 |
| 10 | Осмотровя канава | С.И. | 7 | 900 | 8000 | 7,2 | 50,4 | 9 449 | 66143 |
| 11 | Стеллаж для деталей | MGK | 1 | 600 | 1200 | 0,72 | 0,72 | 13 742 | 13742 |
| 12 | Бак для заправки тормозной жидкостью | JTC-1024 | 1 | 200 | 200 | 0,04 | 0,04 | 11 200 | 11200 |
| 13 | Ящик для инструментов | NT115 | 1 | 300 | 690 | 0,207 | 0,207 | 30 570 | 30570 |
| 14 | Подставка под ноги при работе в осмотровой канаве | С.И. | 2 | 250 | 500 | 0,125 | 0,25 | 1200 | 2400 |
| 15 | Стенд для проверки тормозных систем автомобиля | MBT 3250 | 1 | 1200 | 3200 | 3,84 | 3,84 | 2000000 | 2000000 |
| 16 | Подвесная кран балка | Атлант 101001 | 1 | 0 | 0 | 211 650 | 211650 | ||
| 17 | Подьемник канавный | П-263-02 | 1 | 1070 | 940 | 1,0058 | 1,0058 | 357 900 | 357900 |
| 18 | Переходной мостик съёмный | С.И. | 1 | 800 | 1000 | 0,8 | 0,8 | 500 | 500 |
| 19 | Подъемник электромеханический | П1-01МН1 «АНТЕЙ» | 1 | 1200 | 3200 | 3,84 | 3,84 | 480 000 | 480000 |
| 20 | Воздухораздаточная колонка | С413М | 1 | 300 | 300 | 0,09 | 0,09 | 58 008 | 58008 |
| 21 | Стеллаж для колес | MGK (Ш) 2163-2,5 | 1 | 600 | 2100 | 1,26 | 1,26 | 16 124 | 16124 |
| 22 | Станок для балансировки колес | ES-550 | 1 | 1100 | 1250 | 1,375 | 1,375 | 74 950 | 74950 |
| 23 | Подьемник гидравлический | F27 380V (FLYING) | 1 | 2100 | 2250 | 4,725 | 4,725 | 145 065 | 145065 |
| 24 | Шиномонтажный станок | 4638 NORDBERG | 1 | 985 | 760 | 0,7486 | 0,7486 | 94 987 | 94987 |
| 25 | Огнетушитель | ОП 10 | 1 | 200 | 200 | 0,04 | 0,04 | 1000 | 1000 |
| 26 | Огнетушитель | ОУ 10 | 1 | 200 | 200 | 0,04 | 0,04 | 1000 | 1000 |
| 27 | Ящик с песком | V500 | 1 | 500 | 1000 | 0,5 | 0,5 | 2000 | 2000 |
| 28 | ящик с опилками | V500 | 1 | 500 | 1000 | 0,5 | 0,5 | 2000 | 2000 |
| 29 | Ларь для ветоши | ПТС 74.00.403 | 1 | 400 | 600 | 0,24 | 0,24 | 9 449 | 9449 |
| 30 | Ларь для использованных обтирочных материалов | ПТС 74.00.403 | 1 | 400 | 600 | 0,24 | 0,24 | 9 449 | 9449 |
| 31 | Щит пожарный | ЩП-В | 1 | 600 | 1300 | 0,78 | 0,78 | 10 560 | 10560 |
| 32 | Контейнер для мусора | Gigant120l-QEE-03 | 4 | 600 | 600 | 0,36 | 1,44 | 7 800 | 31200 |
|
Описание к чертежу
|
Описание отсутствует |
|
Экспликация оборудования
|
есть |
|
Площадь производственного участка
|
720 кв.м. |
|
Формат основного чертежа
|
А1 |